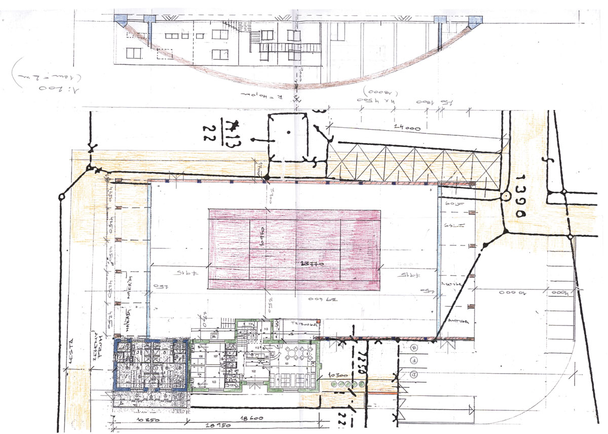
Projekt tenisové haly
 

Při neustálém nedostatku prostoru v halách pro zimní sezónu a stále se zvyšujícími hodinovými náklady na pronájem hal v našem městě vznikl projekt na vybudování vlastní jednokurtové haly v našem areálu, která by zcela pokryla zimní požadavky našeho klubu.

Tento projekt je však samozřejmě finančně nákladný a proto je ve fázi hledání vhodného investora.

 

Tenisová hala

Tenisová hala